中文版
|
English
首 页
关于我们
公司介绍
企业荣誉
企业文化
组织结构
合作伙伴
产品中心
城乡有机垃圾生化处理
生活垃圾热解气化
污水复合微生物生化处理
中水回用技术
水面漂浮物拦截系统
新闻中心
公司新闻
媒体报道
行业新闻
视频中心
服务中心
研发中心
技术支持
下载中心
案例展示
有机垃圾源头生化处理技术
有机垃圾相对集中生化处理技术
城市生活垃圾焚烧处理技术
人才招聘
联系方式
城乡有机垃圾生化处理
生活垃圾热解气化
污水复合微生物生化处理
中水回用技术
水面漂浮物拦截系统
您现在的位置:
首页
> 产品中心 > 中水回用技术
中水回用技术
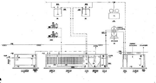
1、技术简介
公司自主研发的RST高效生化处理技术,可根据所处理水
质的实际情
况进行工
艺匹配,有效解决了污水处理过程中水质
的不稳定性,并从源头
上做到污水零排放
及回收利用。目前已
在厦门、泉州等地的工业企业、酒
店、学校取得十分显著的经
济、社会和生态效益。
2、
技术原理图
3、
工程案例
2008-2012 厦门荣佳生物科技有限公司 All Right Reserved
闽ICP备11016396号
公司地址:中国福建省厦门市思明区嘉禾路339号四川大厦2808单元 技术支持:35互联
客户服务